알레르망타워(구.T412)

서울 강남구 테헤란로 412 (대치동 890)
2호선 선릉역 직선거리 200m, 도보 3 ~ 4분 거리 위치, 지상 19층 중대형빌딩

오피스 예상 임대료 계산기

2025년 기준

전용면적 217 py

슬라이드바를 움직여 필요한 면적에 대한 임대료를 알아보세요

(VAT별도)

월임대료 5,762 만원
월관리비 1,773 만원
보증금 57,621 만원
월고정비용 7,535 만원
관리비 모두포함
전용면적당비용 34.78 만원

상기 내용은 기준층 임대료 기준으로, 면적 분할 시 전용율에 따라 다소 차이가 있을 수 있으니 참고용으로 활용하시기 바라며 분할 가능 여부는 별도 협의가 필요합니다.

(주)오피스파인드부동산중개법인

대표 공인중개사 권선숙
주소 서울시 강남구 강남대로 502
개설등록번호 11680-2015-00465
연락처 02-517-2277
건물 임대 문의하기

오피스 동향

게시물 작성

알레르망타워(구 T412)는 서울 강남구 테헤란로 412(대치동 890)에 위치한 중대형 오피스 빌딩으로, 테헤란로 중심 비즈니스 권역에서 기업 경쟁력을 높일 수 있는 최적의 입지를 자랑합니다.

 

이 건물은 지하 6층, 지상 19층 규모로 2000년에 준공되었습니다. 철근콘크리트 구조로 건축되어 안정성과 내구성이 확보되었으며, 연면적은 약 49,690㎡에 달합니다. 테헤란로 대로변에 위치해 있어 시인성과 상징성이 뛰어나며, 기업의 브랜드 가치를 강화할 수 있는 입지적 장점을 가지고 있습니다.

 

교통 접근성은 매우 우수합니다. 2호선과 분당선이 교차하는 선릉역과 도보 약 2분 거리에 위치해 있어, 임직원과 내방객 모두 편리하게 접근할 수 있습니다. 더불어 다양한 버스 노선과 강남 도심 주요 도로망이 인접해 있어 광역 교통망 이용이 용이합니다.

 

건축적 특징으로는 고급 커튼월 외관과 쾌적한 로비 공간, 효율적인 중앙 냉난방 시스템을 통한 사계절 쾌적한 실내 환경을 들 수 있습니다. 기준층 전용 면적은 약 800평 규모로, 대형 및 중형 기업 모두에게 적합한 사무 공간을 제공합니다. 전용률은 약 56% 수준이며, 승강기는 승용 8대와 화물용 1대를 포함한 총 9대가 설치되어 원활한 수직 동선을 보장합니다. 주차 공간은 약 300대 이상을 수용할 수 있어 차량 이용 환경도 우수합니다.

 

주요 입주사로는 삼성생명, 한국산업인력공단, 니트로스튜디오 등이 있으며, 금융, 공공기관, 크리에이티브 산업 등 다양한 분야에서 선도적인 기업들이 입주해 있습니다. 이는 알레르망타워가 안정성과 전문성을 갖춘 업무 공간으로 인정받고 있음을 보여줍니다.

 

추천 업종으로는 금융기관, 공공기관, 글로벌 컨설팅사, IT 및 크리에이티브 기업, 해외 기업 한국 지사 등이 적합합니다. 특히 테헤란로의 네트워크와 연계성을 고려할 때, 투자사, 핀테크, 디자인·콘텐츠 제작 기업 등 혁신적인 산업군에도 잘 어울립니다.

 

알레르망타워는 강남 테헤란로 핵심 입지, 뛰어난 교통 접근성, 안정적인 건축 구조, 그리고 효율적인 평면 설계를 모두 갖춘 오피스 빌딩입니다. 기업의 위상 제고와 브랜드 가치를 강화할 수 있는 이 빌딩은, 신뢰성과 실용성을 동시에 충족하는 이상적인 업무 공간이라 할 수 있습니다.

기준층 임대시세 2025년 기준

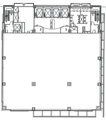
기준층 면적 임대 1,465.26  /  전용 716.10
전용율 48.87%
임대료 단가(평당) 보증금  130만원 /  임대료  13만원
관리비 단가(평당) 관리비  4만원

건축물정보

건축규모 지하6층, 지상19층 | 중대형
연면적 26,388.66
건축면적 1,047.65
건물용도 업무시설
주구조 철골철근콘크리트 철골조
사용승인 2000-08-30 (26yg)

시설정보

승강기 총 5대(승용 4대 비상화물용 1대)
주차공간 총 200대(자주식 120대 기계식 80대)
냉난방 중앙 냉난방

위치정보

지번주소 (대치동 890)
지하철역

2호선 선릉역 [도보 3~4분]

지하철역, 건물규모(+-20%) - 연면적 으로, NOC(+-10%)

알레르망타워(구.T412) 주변 추천 오피스