2026년 기준
(VAT별도)
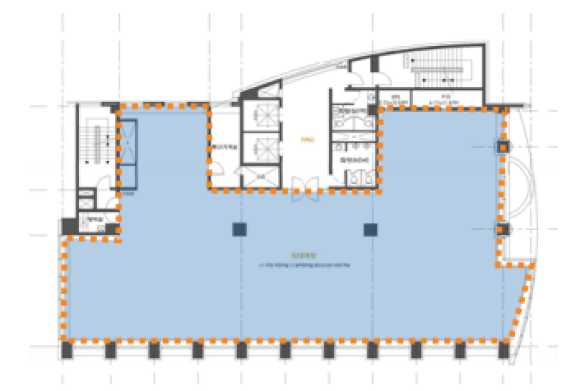
상기 내용은 기준층 임대료 기준으로, 면적 분할 시 전용율에 따라 다소 차이가 있을 수 있으니 참고용으로 활용하시기 바라며 분할 가능 여부는 별도 협의가 필요합니다.
| 기준층 면적 | 임대 653.02m² / 전용 411.40m² |
|---|---|
| 전용율 | 63% |
| 임대료 단가(m²당) | 보증금 22.69만원 / 임대료 2.27만원 |
| 관리비 단가(m²당) | 관리비 1.21만원 |
| 건축규모 | 지하3층, 지상12층 | 중소형 |
|---|---|
| 연면적 | 8,749.16m² |
| 건축면적 | 694.84m² |
| 건물용도 | 업무시설 |
| 주구조 | 철근콘크리트구조 |
| 사용승인 | 1997-08-01 (29yg) |
| 승강기 | 총 2대(승용 2대 ) |
|---|---|
| 주차공간 | 총 95대(자주식 1대 기계식 94대) |
| 냉난방 |
| 지번주소 | (저동2가 64) |
|---|---|
| 지하철역 | 2호선 을지로3가역 [도보 4~5분] |