한화소공빌딩

서울 중구 소공로 109 (소공동 110)
1호선 시청역 직선거리 140m, 도보 2 ~ 3분 거리 위치, 지상 19층 대형빌딩

오피스 예상 임대료 계산기

2025년 기준

전용면적 264 py

슬라이드바를 움직여 필요한 면적에 대한 임대료를 알아보세요

(VAT별도)

월임대료 5,173 만원
월관리비 2,483 만원
보증금 51,731 만원
월고정비용 7,656 만원
관리비 모두포함
전용면적당비용 29.02 만원

상기 내용은 기준층 임대료 기준으로, 면적 분할 시 전용율에 따라 다소 차이가 있을 수 있으니 참고용으로 활용하시기 바라며 분할 가능 여부는 별도 협의가 필요합니다.

(주)오피스파인드부동산중개법인

대표 공인중개사 권선숙
주소 서울시 강남구 강남대로 502
개설등록번호 11680-2015-00465
연락처 02-517-2277
건물 임대 문의하기

오피스 동향

게시물 작성

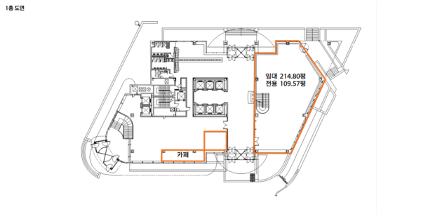
기준층 임대시세 2025년 기준

기준층 면적 임대 1,710.12  /  전용 872.17
전용율 51%
임대료 단가(평당) 보증금  100만원 /  임대료  10만원
관리비 단가(평당) 관리비  4.80만원

건축물정보

건축규모 지하8층, 지상19층 | 대형
연면적 48,596.36
건축면적 1,474.99
건물용도 업무시설
주구조 철골조 철골철근콘크리트조
사용승인 1998-03-09 (28yg)

시설정보

승강기 총 9대(승용 8대 비상화물용 1대)
주차공간 총 495대(자주식 495대 )
냉난방 중앙 냉난방

위치정보

지번주소 (소공동 110)
지하철역

2호선 시청역 [도보 2~3분]

지하철역, 건물규모(+-20%) - 연면적 으로, NOC(+-10%)

한화소공빌딩 주변 추천 오피스