HSBC빌딩

서울 중구 칠패로 37 (봉래동1가 25)
경의중앙선 공덕역 직선거리 388m, 도보 5 ~ 6분 거리 위치, 지상 19층 대형빌딩

오피스 예상 임대료 계산기

2025년 기준

전용면적 312 py

슬라이드바를 움직여 필요한 면적에 대한 임대료를 알아보세요

(VAT별도)

월임대료 6,465 만원
월관리비 2,909 만원
보증금 64,654 만원
월고정비용 9,375 만원
관리비 모두포함
전용면적당비용 30.07 만원

상기 내용은 기준층 임대료 기준으로, 면적 분할 시 전용율에 따라 다소 차이가 있을 수 있으니 참고용으로 활용하시기 바라며 분할 가능 여부는 별도 협의가 필요합니다.

(주)오피스파인드부동산중개법인

대표 공인중개사 권선숙
주소 서울시 강남구 강남대로 502
개설등록번호 11680-2015-00465
연락처 02-517-2277
건물 임대 문의하기

오피스 동향

게시물 작성

서울 중구 칠패로 37, 서울역과 시청역 사이 도심 요지에 위치한 HSBC빌딩은 국제적 위상에 걸맞은 안정성과 입지, 시설을 갖춘 대형 오피스 빌딩입니다. 지하 6층, 지상 19층 규모로 연면적은 약 37,708㎡(11,406평), 건축면적은 1,232㎡(373평)에 달하며, 1992년 준공 이후 체계적인 관리와 유지 보수를 통해 오늘날까지 우수한 업무 환경을 제공합니다.

 

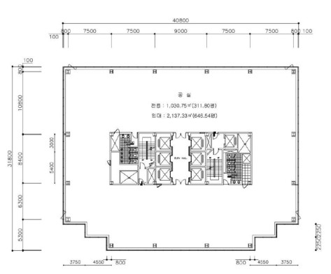
기준층 전용면적은 약 1,031㎡(312평), 전용률은 48%로 설계되어 효율성과 공간 활용성을 동시에 제공합니다. 개방감 있는 평면 구조는 다양한 업종과 기업 규모에 맞는 유연한 공간 배치를 가능하게 하며, 특히 중견기업과 글로벌 기업 지사에 적합한 조건을 갖추고 있습니다.

 

교통 접근성은 HSBC빌딩의 가장 큰 장점 중 하나입니다. 지하철 2호선 시청역 도보 5분, 1호선 서울역 도보 5분 거리에 위치해 주요 업무지구로의 이동이 편리합니다. 또한 서울역을 통한 KTX, 공항철도, 광역버스 접근이 용이해 국내외 출장과 글로벌 비즈니스에도 최적의 입지를 자랑합니다.

 

시설 면에서도 입주사의 편의를 충분히 고려했습니다. 승용 6대, 비상·화물용 1대를 포함한 총 7대의 엘리베이터가 설치되어 층간 이동이 원활하며, 지하 주차장은 자주식으로 총 247대를 수용할 수 있습니다. 중앙 냉난방 시스템이 적용되어 사계절 안정적이고 쾌적한 사무 환경이 유지되며, 로비에는 출입 통제 시스템이 마련되어 보안성 역시 강화되었습니다.

 

주변 인프라 역시 뛰어납니다. 정부청사, 금융기관, 대기업 본사가 밀집한 서울 도심권에 위치하여 비즈니스 시너지 효과가 크고, 백화점, 호텔, 상업시설, 다양한 식음료 매장들이 인근에 있어 직원 복지와 생활 편의도 우수합니다.

 

HSBC빌딩은 서울 도심 핵심 입지, 효율적 공간 설계, 체계적인 관리와 보안, 풍부한 업무 및 생활 인프라를 모두 갖춘 빌딩으로, 글로벌 스탠더드에 맞는 안정적인 업무 환경과 기업 이미지 제고를 원하는 입주사에게 최적의 선택이 될 것입니다. 

 

HSBC빌딩은 시청역과 서울역을 모두 도보 5분 내에 이용할 수 있는 도심 핵심 입지를 자랑합니다. 312평 규모의 기준층 전용면적과 48% 전용률, 247대 규모의 주차시설, 7대의 엘리베이터, 중앙 냉난방과 출입 통제 시스템이 쾌적하고 안정적인 사무 환경을 제공합니다. 글로벌 기업 이미지와 업무 효율을 동시에 추구하는 기업에게 최적의 오피스 빌딩입니다.

기준층 임대시세 2025년 기준

기준층 면적 임대 2,137.32  /  전용 1,030.74
전용율 48.23%
임대료 단가(평당) 보증금  100만원 /  임대료  10만원
관리비 단가(평당) 관리비  4.50만원

건축물정보

건축규모 지하6층, 지상19층 | 대형
연면적 37,708.10
건축면적 1,232.33
건물용도 업무시설
주구조 철골철근콘크리트조
사용승인 1992-05-04 (34yg)

시설정보

승강기 총 7대(승용 6대 비상화물용 1대)
주차공간 총 247대(자주식 247대 )
냉난방 중앙 냉난방

위치정보

지번주소 (봉래동1가 25)
지하철역

경의중앙선 공덕역 [도보 5~6분]

지하철역, 건물규모(+-20%) - 연면적 으로, NOC(+-10%)

HSBC빌딩 주변 추천 오피스