2025년 기준
(VAT별도)
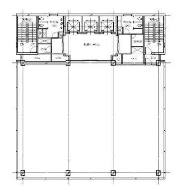
상기 내용은 기준층 임대료 기준으로, 면적 분할 시 전용율에 따라 다소 차이가 있을 수 있으니 참고용으로 활용하시기 바라며 분할 가능 여부는 별도 협의가 필요합니다.
| 기준층 면적 | 임대 776.36m² / 전용 373.59m² |
|---|---|
| 전용율 | 48.12% |
| 임대료 단가(평당) | 보증금 85만원 / 임대료 8.50만원 |
| 관리비 단가(평당) | 관리비 4.30만원 |
| 건축규모 | 지하5층, 지상15층 | 중형 |
|---|---|
| 연면적 | 12,320.96m² |
| 건축면적 | 509.09m² |
| 건물용도 | 업무시설 |
| 주구조 | 철근콘크리트조 |
| 사용승인 | 1986-11-18 (40yg) |
| 승강기 | 총 3대(승용 3대 ) |
|---|---|
| 주차공간 | 총 73대(자주식 73대 ) |
| 냉난방 | 중앙 냉난방 |
| 지번주소 | (다동 111) |
|---|---|
| 지하철역 | 2호선 을지로입구역 [도보 1~2분] |