메트로타워

서울 중구 퇴계로 10 (남대문로5가 537)
4호선 서울역 직선거리 250m, 도보 3 ~ 4분 거리 위치, 지상 20층 중대형빌딩

오피스 예상 임대료 계산기

2024년 기준

전용면적 100 py

슬라이드바를 움직여 필요한 면적에 대한 임대료를 알아보세요

(VAT별도)

월임대료 6,408 만원
월관리비 2,396 만원
보증금 64,083 만원
월고정비용 8,804 만원
관리비 모두포함
전용면적당비용 23.93 만원

상기 내용은 기준층 임대료 기준으로, 면적 분할 시 전용율에 따라 다소 차이가 있을 수 있으니 참고용으로 활용하시기 바라며 분할 가능 여부는 별도 협의가 필요합니다.

(주)오피스파인드부동산중개법인

대표 공인중개사 권선숙
주소 서울시 강남구 강남대로 502
개설등록번호 11680-2015-00465
연락처 02-517-2277
건물 임대 문의하기

오피스 동향

게시물 작성

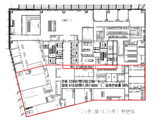
기준층 임대시세 2025년 기준

기준층 면적 임대 1,936.43  /  전용 1,216.07
전용율 62.80%
임대료 단가(평당) 보증금  109.40만원 /  임대료  10.94만원
관리비 단가(평당) 관리비  4.09만원

건축물정보

건축규모 지하2층, 지상20층 | 중대형
연면적 32,488m²
건축면적 2,094.40
건물용도 업무시설 근린생활시설
주구조 철근콘크리트조
사용승인 1970-08-20 2014년 리노베이션 (56yg)

시설정보

승강기 총 8대(승용 7대 비상화물용 1대)
주차공간 총 221대(기계식 221대)
냉난방 중앙 냉난방

위치정보

지번주소 (남대문로5가 537)
지하철역

공항철도 서울역 [도보 3~4분]

지하철역, 건물규모(+-20%) - 연면적 으로, NOC(+-10%)

메트로타워 주변 추천 오피스