그레이츠 청계(구 대일빌딩)

서울 중구 남대문로 120 (남대문로1가 18)
2호선 을지로입구역 직선거리 217m, 도보 3 ~ 4분 거리 위치, 지상 19층 중소형빌딩

오피스 예상 임대료 계산기

2025년 기준

전용면적 64 py

슬라이드바를 움직여 필요한 면적에 대한 임대료를 알아보세요

(VAT별도)

월임대료 2,216 만원
월관리비 779 만원
보증금 22,165 만원
월고정비용 2,996 만원
관리비 모두포함
전용면적당비용 23.75 만원

상기 내용은 기준층 임대료 기준으로, 면적 분할 시 전용율에 따라 다소 차이가 있을 수 있으니 참고용으로 활용하시기 바라며 분할 가능 여부는 별도 협의가 필요합니다.

(주)오피스파인드부동산중개법인

대표 공인중개사 권선숙
주소 서울시 강남구 강남대로 502
개설등록번호 11680-2015-00465
연락처 02-517-2277
건물 임대 문의하기

오피스 동향

게시물 작성

서울 중구 남대문로 120, 종각역과 을지로입구역 사이에 위치한 그레이츠 청계(구 대일빌딩)는 도심 한복판에서 뛰어난 접근성과 효율적 공간 활용성을 제공하는 중소형 오피스 빌딩입니다. 지하 1층, 지상 19층 규모로 연면적은 약 8,887㎡(2,688평), 건축면적은 499㎡(151평)에 달합니다. 1970년 준공된 이후 2018년 대대적인 리모델링을 거쳐 외관과 내부가 현대적 감각으로 탈바꿈하여 쾌적한 업무 환경을 갖추고 있습니다.

 

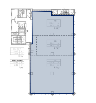
기준층 전용면적은 약 417㎡(126평), 전용률은 72.8%로 설계되어 실제 사용 가능한 면적이 넉넉합니다. 높은 전용률은 중소기업, 스타트업, 전문 서비스 기업 등에서 공간 효율성을 극대화하는 데 유리하며, 개방적인 평면 구조는 다양한 업종의 필요에 맞게 유연한 공간 배치를 가능하게 합니다.

 

교통 접근성은 그레이츠 청계의 대표적인 장점입니다. 1호선 종각역 도보 3분, 2호선 을지로입구역 도보 2분 거리에 위치해 서울 전역으로의 이동이 용이합니다. 세종대로와 남대문로, 청계천로 등 주요 간선도로와 인접해 차량 이동도 원활하며, 버스 노선도 다양해 임직원과 방문객 모두 편리하게 이용할 수 있습니다.

 

시설 측면에서는 실속형 빌딩답게 합리적 구성을 갖추고 있습니다. 승용 엘리베이터 2대가 원활한 이동을 지원하며, 자주식으로 총 35대의 주차 공간을 제공합니다. 냉난방은 천정형 개별 시스템이 적용되어 각 사무실별로 환경을 조절할 수 있어 에너지 효율성과 쾌적성을 동시에 확보할 수 있습니다.

 

주변 인프라는 금융 중심지와 상업지구의 장점을 그대로 누릴 수 있습니다. 광화문, 명동, 을지로, 종로 일대가 가까워 은행, 증권사, 보험사 본사 및 대기업, 정부기관과 인접해 있습니다. 또한 백화점, 호텔, 다양한 상업시설과 식음료 매장이 풍부하여 직원 복지와 비즈니스 활동 모두에 최적의 환경을 제공합니다.

 

그레이츠 청계는 초역세권 입지, 높은 전용률, 현대적 리모델링, 풍부한 도심 인프라를 두루 갖춘 실속형 오피스 빌딩으로, 합리적인 공간과 효율적인 입지를 원하는 기업에게 이상적인 선택입니다. 

 

그레이츠 청계는 종각역 도보 3분, 을지로입구역 도보 2분의 초역세권 입지에 위치한 실속형 오피스 빌딩입니다. 기준층 126평과 72.8%의 높은 전용률, 개별 냉난방 시스템으로 효율적이고 쾌적한 사무 환경을 제공합니다. 2018년 리모델링을 통해 현대적 감각으로 개선된 이 빌딩은 합리적 공간 활용과 중심업무지구의 인프라를 동시에 원하는 기업에게 최적의 공간입니다.

기준층 임대시세 2025년 기준

기준층 면적 임대 572.43  /  전용 416.93
전용율 72.83%
임대료 단가(평당) 보증금  128만원 /  임대료  12.80만원
관리비 단가(평당) 관리비  4.50만원

건축물정보

건축규모 지하1층, 지상19층 | 중소형
연면적 8,886.84
건축면적 499m²
건물용도 업무시설
주구조 철근콘크리트조
사용승인 1970-12-11 2018리모델링 (56yg)

시설정보

승강기 총 2대(승용 2대 )
주차공간 총 35대(자주식 35대 )
냉난방 천정형 냉난방(개별가동)

위치정보

지번주소 (남대문로1가 18)
지하철역

2호선 을지로입구역 [도보 3~4분]

지하철역, 건물규모(+-20%) - 연면적 으로, NOC(+-10%)

그레이츠 청계(구 대일빌딩) 주변 추천 오피스