2025년 기준
(VAT별도)
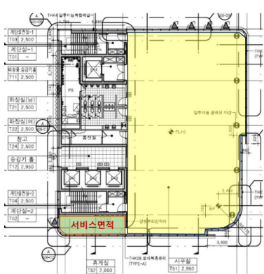
상기 내용은 기준층 임대료 기준으로, 면적 분할 시 전용율에 따라 다소 차이가 있을 수 있으니 참고용으로 활용하시기 바라며 분할 가능 여부는 별도 협의가 필요합니다.
| 기준층 면적 | 임대 961.95m² / 전용 410.55m² |
|---|---|
| 전용율 | 42.68% |
| 임대료 단가(평당) | 보증금 40만원 / 임대료 4만원 |
| 관리비 단가(평당) | 관리비 1.62만원 |
| 건축규모 | 지하5층, 지상15층 | 중형 |
|---|---|
| 연면적 | 5,255.87m² |
| 건축면적 | 982.28m² |
| 건물용도 | 업무시설 및 근린생활시설 |
| 주구조 | |
| 사용승인 | 2023-04-01 (3yg) |
| 승강기 | 총 3대(승용 3대 ) |
|---|---|
| 주차공간 | 총 130대(자주식 130대 ) |
| 냉난방 | 중앙 냉난방,천정형 냉난방(개별가동) |
| 지번주소 | (고덕동 98-7) |
|---|---|
| 지하철역 |